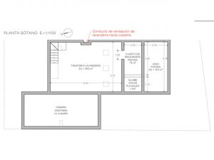
Este terreno está ubicado en la encantadora zona de Son Sardina, Palma de Mallorca. Con una superficie total de 240 m², esta parcela ofrece diversas comodidades como conexiones de alcantarillado, caminos asfaltados, permisos de construcción, vallados existentes e iluminación. Es una gran oportunidad para aquellos que buscan construir la propiedad de sus sueños en un vecindario bien establecido. ¡Contáctenos ahora para obtener más información sobre este fantástico terreno!








